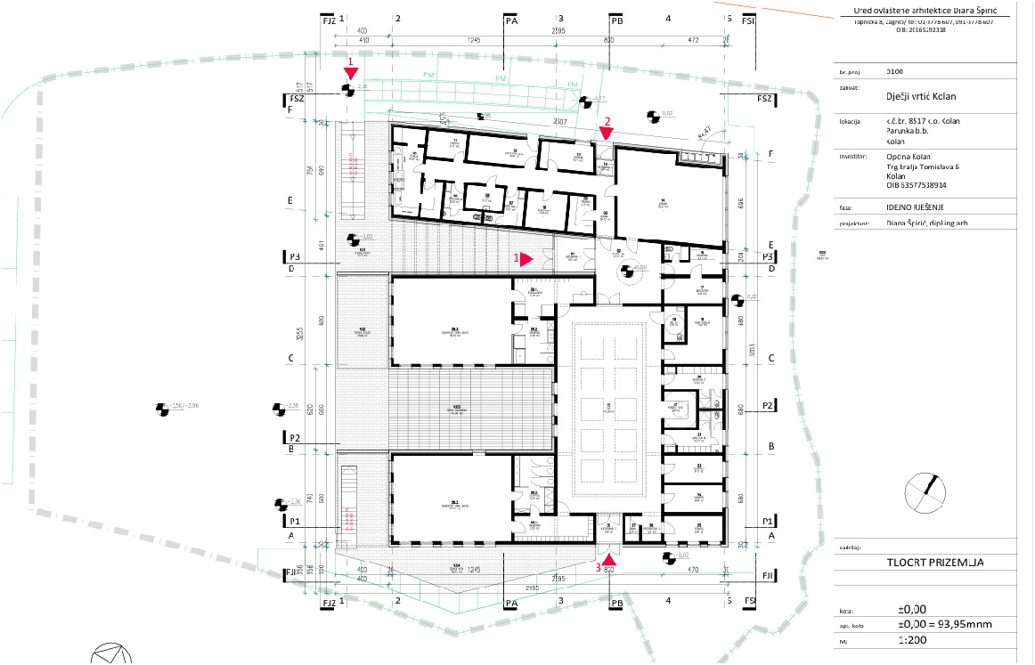
KOLAN S PROJEKTOM USUSRET NAJMLAĐIMA Otvoreno gradilište novog dječjeg vrtića! Evo kako u planu izgleda…
OPĆINA KOLAN
Dana 10. rujna održana je prva koordinacija u sklopu uvođenja u posao i službenog otvaranja izuzetno unačajnog gradilišta u Kolanu, i to – novog dječjeg vrtića.
Na sastanku su sudjelovali predstavnici izvođača, nadzora, projektanta i naručitelja – Općine Kolan.

Tijekom koordinacije razmijenjena je potrebna projektna dokumentacija, a zatim je izvršen obilazak gradilišta.
S tim danom 10.09., službeno se smatra da je gradilište predano izvođaču, što znači da mogu započeti radovi. Od tog datuma počinje teći rok za završetak radova koji iznosi 12 mjeseci, do rujna 2025. Prema izjavama izvođača sami konkretni radovi na podizanju vrtića trebaju krenuti već idući tjedan.

Izgradnja dječjeg vrtića financira se bespovratnim sredstvima iz Nacionalnog plana oporavka i otpornosti (NPOO-a).
-Veselimo se budućim koracima i napretku radova koji će našim najmlađima omogućiti novo, moderno okruženje za igru i učenje- poručili su i iz Općine Kolan.


