NINSKI ZELENI VAL Počeli radovi na uređenju i ozelenjivanju parka “Bori Nin” – stiže čak 417 novih stabala
GRQD NIN
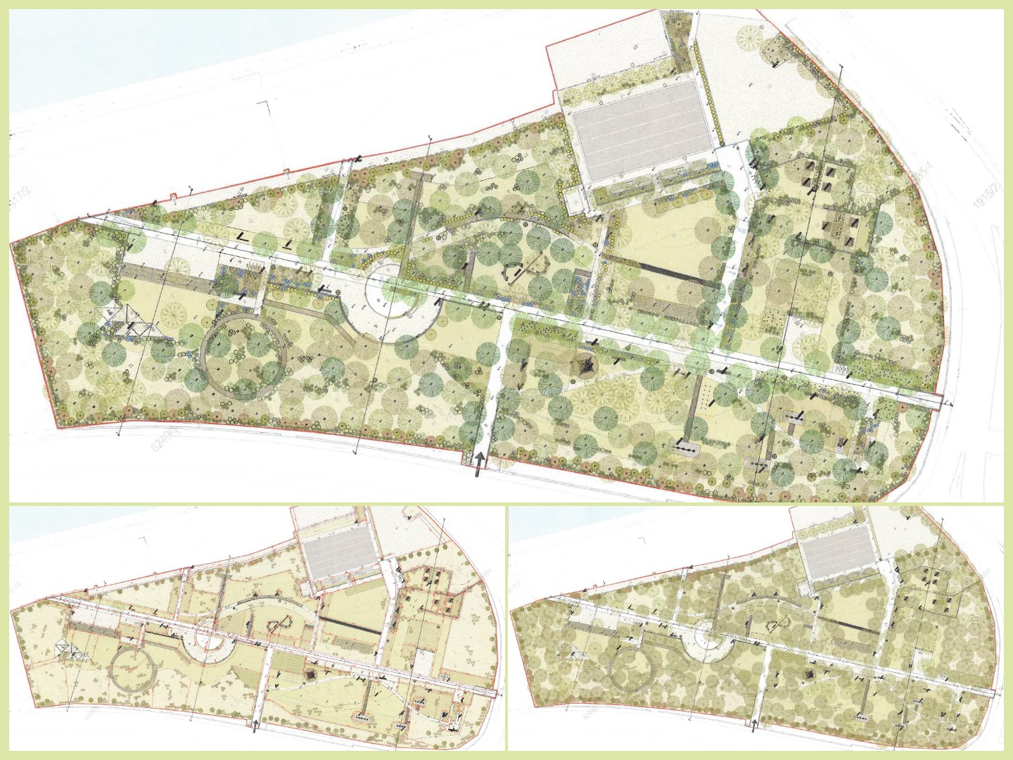
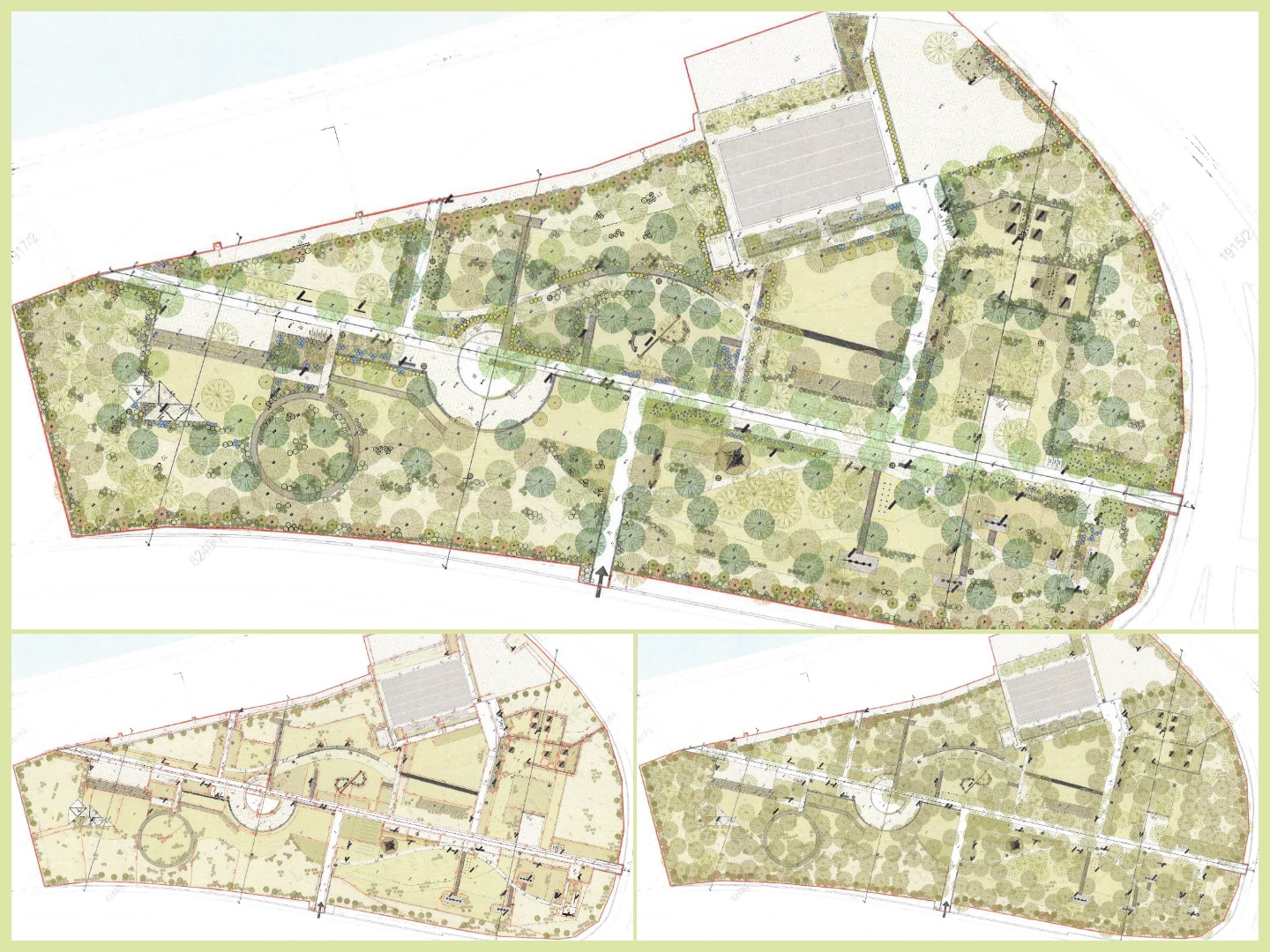
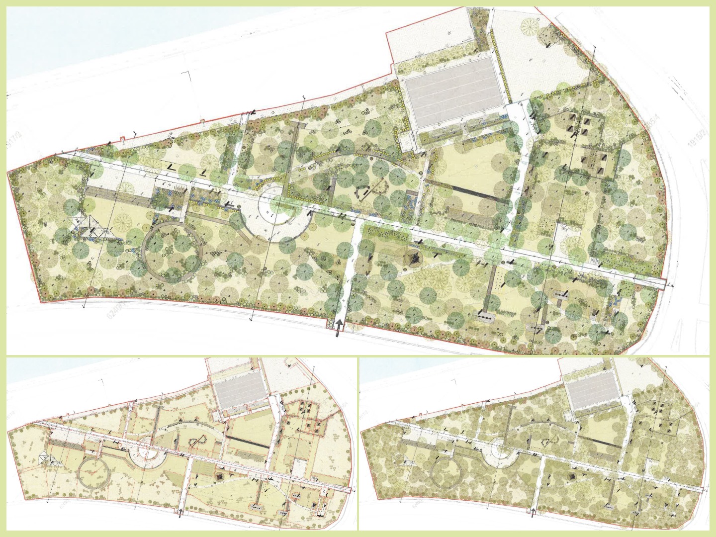
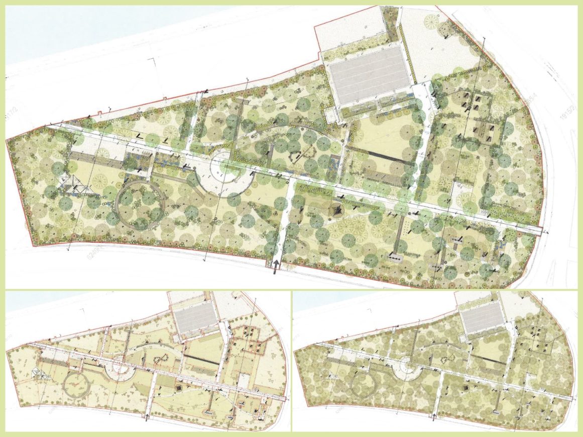
U gradu Ninu službeno su započeli radovi na uređenju i ozelenjivanju parka “Bori Nin”, jedne od značajnih zelenih površina u ovom povijesnom dalmatinskom gradu. Projekt se provodi u sklopu mjera prilagodbe klimatskim promjenama, a temelj je ugovor sklopljen između Fonda za zaštitu okoliša i energetsku učinkovitost, i Grada Nina.
U sklopu projekta predviđena je sadnja čak 417 novih stabala, čime se park ne samo krajobrazno obogaćuje, već se direktno doprinosi povećanju otpornosti gradskog prostora na klimatske ekstreme, poput sve učestalijih suša i toplinskih valova. Novi zeleni pojas imat će višestruke koristi — od poboljšanja kvalitete zraka i smanjenja urbanog efekta toplinskog otoka, do stvaranja ugodnijeg prostora za rekreaciju i boravak građana.
Radovi su rezultat uspješno provedenog otvorenog postupka javne nabave, čime su osigurani transparentnost i učinkovitost u realizaciji projekta. Ukupna vrijednost investicije iznosi 343.524,48 eura s PDV-om, kod čega glavninu sredstava — 274.819,59 eura — osigurava Fond za zaštitu okoliša i energetsku učinkovitost. Preostali iznos pokriva Grad Nin iz vlastitog proračuna.

Gradonačelnik Nina ističe kako je riječ o važnom iskoraku u smjeru održivog urbanog razvoja, ali i konkretne mjere kojom se odgovara na izazove klimatskih promjena. „
-Ovaj projekt nije samo ulaganje u hortikulturu, već u zdravlje, kvalitetu života i budućnost našeg grada – poručio je gradonačelnik, dodajući kako će nove sadnje biti pažljivo birane vrste prilagođene lokalnoj klimi i uvjetima tla.

Očekuje se da će radovi trajati nekoliko mjeseci, a građani će moći pratiti njihov napredak te uskoro uživati u osvježenom i značajno zelenijem prostoru. Uz sadnju drveća, projekt uključuje i krajobrazne radove, uređenje šetnica te implementaciju elemenata koji doprinose održivosti, poput sustava za navodnjavanje i očuvanje biljnog pokrova.
Park “Bori Nin” uskoro će postati novi simbol zelene obnove grada, mjesto susreta, opuštanja i zajedničkog suživota s prirodom – upravo onako kako to zahtijeva suvremeno urbano planiranje u doba klimatskih izazova. (PL)





